Casa Nube: acero y materiales sustentables en perfecta armonía
Situado en una cresta de la Sierra Norte por encima de Oaxaca, Juárez, el sitio desciende hacia el valle que se extiende hacia el este. Desde los pisos superiores de la casa, los sitios precolombinos de Monte Albán y Atzompa son visibles en la cima de las colinas vecinas.
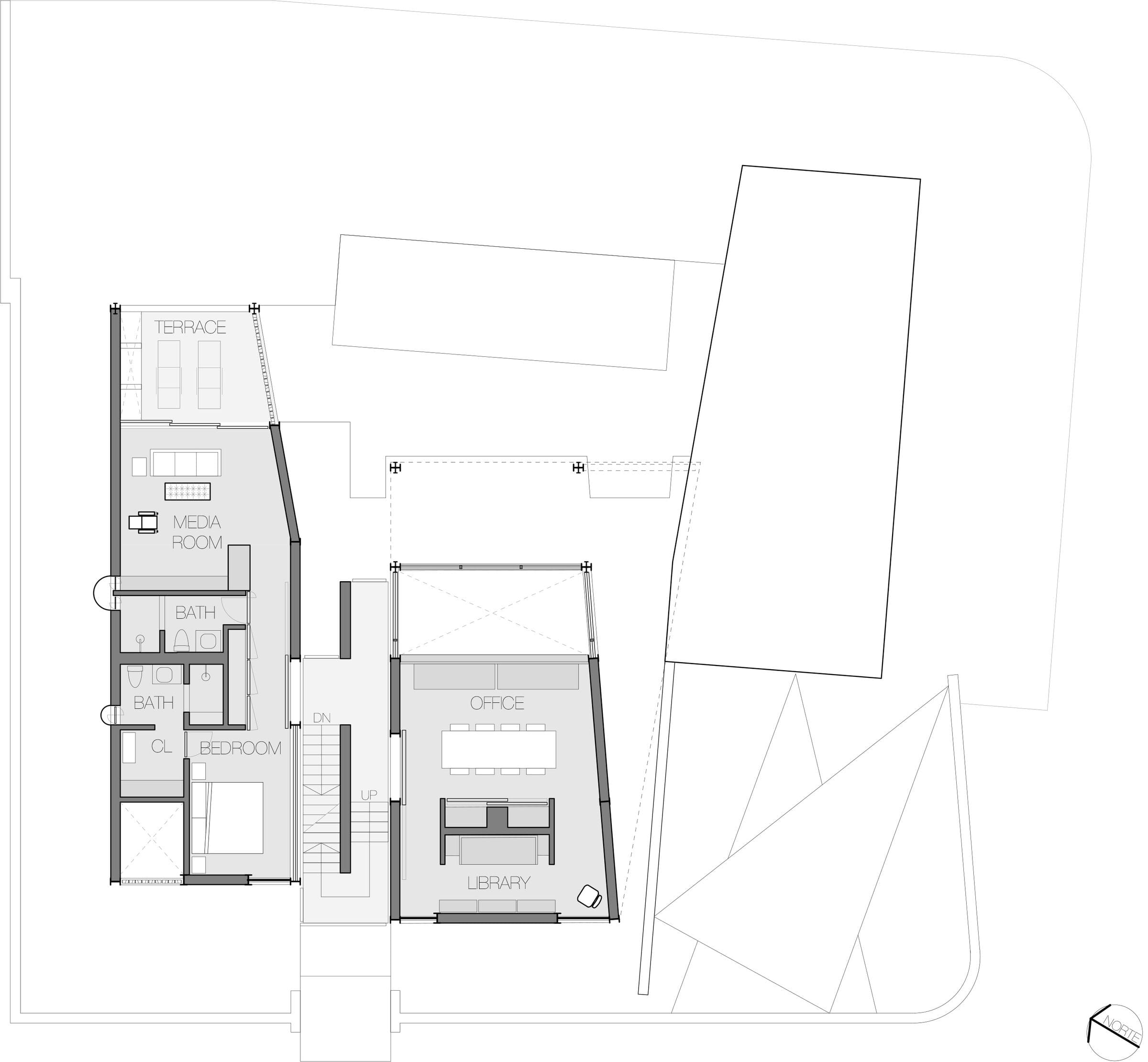
La casa está organizada en sus 1.000 metros cuadrados en tres casitas separadas de uno, dos y tres pisos. Los volúmenes descienden por la pendiente de 10 metros del terreno y forman un espacio de patio abierto suelto que da al valle. Entre las casitas de dos y tres pisos hay una escalera abierta de hormigón rematada con una marquesina de cristal.

Los volúmenes separados se relacionan con la escala de las casas tradicionales de la región a pequeña escala, y permiten el movimiento independiente durante la frecuente actividad sísmica. En el lado norte del solar, junto al único vecino, se encuentra la casita de tres pisos con dormitorio.
La casita central, de dos plantas, contiene la cocina y el comedor en la planta baja y un estudio y una biblioteca en la superior. La tercera casita, de una sola planta, se encuentra en la esquina sureste del terreno y contiene un espacio habitable de doble altura. El patio central da paso a un jardín que rodea la casa. Una piscina de azulejos negros define el borde de la terraza central.

La pesada estructura de acero de la casa está unida a una serie de cimientos de hormigón atados a la roca madre. La estructura de acero tiene paredes de relleno de bloques de adobe producidos localmente o conjuntos de acero y vidrio. Las grandes extensiones de adobe están reforzadas internamente con acero y hormigón.
Todas las ventanas de acero se construyeron a mano in situ. Los techos de madera de nopo, teñidos de negro, ocultan la instalación eléctrica. Los armarios de madera de nopo con acabado natural y las puertas personalizadas completan los interiores. A lo largo de la casa, una serie de pantallas de arcilla, teñidas de negro, dan sombra a la intensa luz del día, proporcionan intimidad y ofrecen un seductor velo a las vistas más allá. Un par de terrazas, abiertas y cerradas, activan los techos de las dos casitas de la escalera.

La organización suelta de la casa permite una ventilación cruzada constante que, combinada con los enormes muros de adobe, mantiene una temperatura interior fresca durante todo el año. La casa no necesita sistemas de calefacción ni de aire acondicionado. El agua se recoge de los tejados de la casita durante las lluvias diarias de los meses húmedos, de mayo a septiembre.

El agua se almacena en una cisterna debajo de la casita del salón y se filtra para uso doméstico en toda la casa. La superficie del tejado y la capacidad de la cisterna están dimensionadas para satisfacer las necesidades de agua durante la estación seca, de octubre a abril. Todas las aguas residuales se gestionan in situ a través de un sistema de biodigestores, completamente separado del sistema de la ciudad. El calentamiento del agua se realiza mediante calentadores de agua solares.


Además de la original estructura de Casa Nube, los materiales son el elemento estrella dentro de la obra. La pesada estructura de acero de la casa está atada a una serie de cimientos de concreto amarrados a la roca y el marco de acero tiene paredes de relleno de bloques de adobe de producción local o ensamblajes de acero y vidrio. Los hermosos techos de madera de nopo, teñidos de negro, ocultan trabajos eléctricos para seguir dando un look industrial pero elegante. Los gabinetes de madera nopo con acabado natural y las puertas personalizadas completan los interiores. Además de los materiales, este hogar se creó al darle prioridad a la artesanía y las técnicas del sitio, por ejemplo todas las ventanas de acero se construyeron a mano en el lugar.






































































